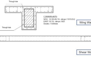
The project involves the seismic assessment and the seismic retrofit of a 8,500 m2 hotel in Chalkida. The building is made of reinforced concrete and it was constructed in the early 1970s. The strengthening was carried out using a combination of methods: shotcrete jackets, new cast-in-place reinforced concrete walls, the construction of wing walls on existing columns in order to increase their dimensions, and wrapping fiber-reinforced polymer (FRP) fabrics.
The project was carried out in 2022 over a period of 40 days. For the seismic assessment and strengthening of the building components, the nonlinear static procedure (pushover analysis) was employed according to Eurocode 8. All the analyses and checks were conducted with the SeismoBuild software.








